Страница 1 из 2
10 домов 3 калитки ворота

Добавлено:
23 янв 2017, 12:01
ЕвгенийТ
Добрый день!
Прошу Вас помочь в подборе технического решения и оборудования
РАЙКМАНН для цифровой аудиодомофонии. Схема

- 1.jpeg (1.28 MiB) Просмотров: 3716
Суть такова: жилой комплекс состоит из 10-ти 3х этажных 3х подъездных домов по 6 квартир в подъезде и трех таунхаусов(каждый таунхаус на 2 квартиры с отдельными входами). Жилой комплекс огорожен забором с
тремя калитками и раздвижными воротами. Вход через калитки и
подъездные двери домов должен осуществляться ключом ТМ или через вызов абонента. Вызывные панели в таунхаусы не нужны. Также возле раздвижных ворот предусмотрена комната охраны, в которой необходимо предусмотреть пульт консьержа.
Плюс некоторые вопросы:
1. Какие кабели использовать для а)интерфейсной обвязки внешних свитчеров, б)между выз. панелью и свитчером, с)между свитчером и трубкой?
2. База ключей ТМ хранится в выз.панели?(Т.е. если я пропишу ключ
только для 1 подъезда, попаду ли я с его помощью во 2 или 3 - что нежелательно).
3. Куда подключается пульт консьержа?
Заранее благодарю
Re: 10 домов 3 калитки ворота

Добавлено:
23 янв 2017, 12:06
TheGoldMaster
Добрый день .
В ближайшее время составим для Вас схему подключения !
Re: 10 домов 3 калитки ворота

Добавлено:
23 янв 2017, 12:13
TheGoldMaster
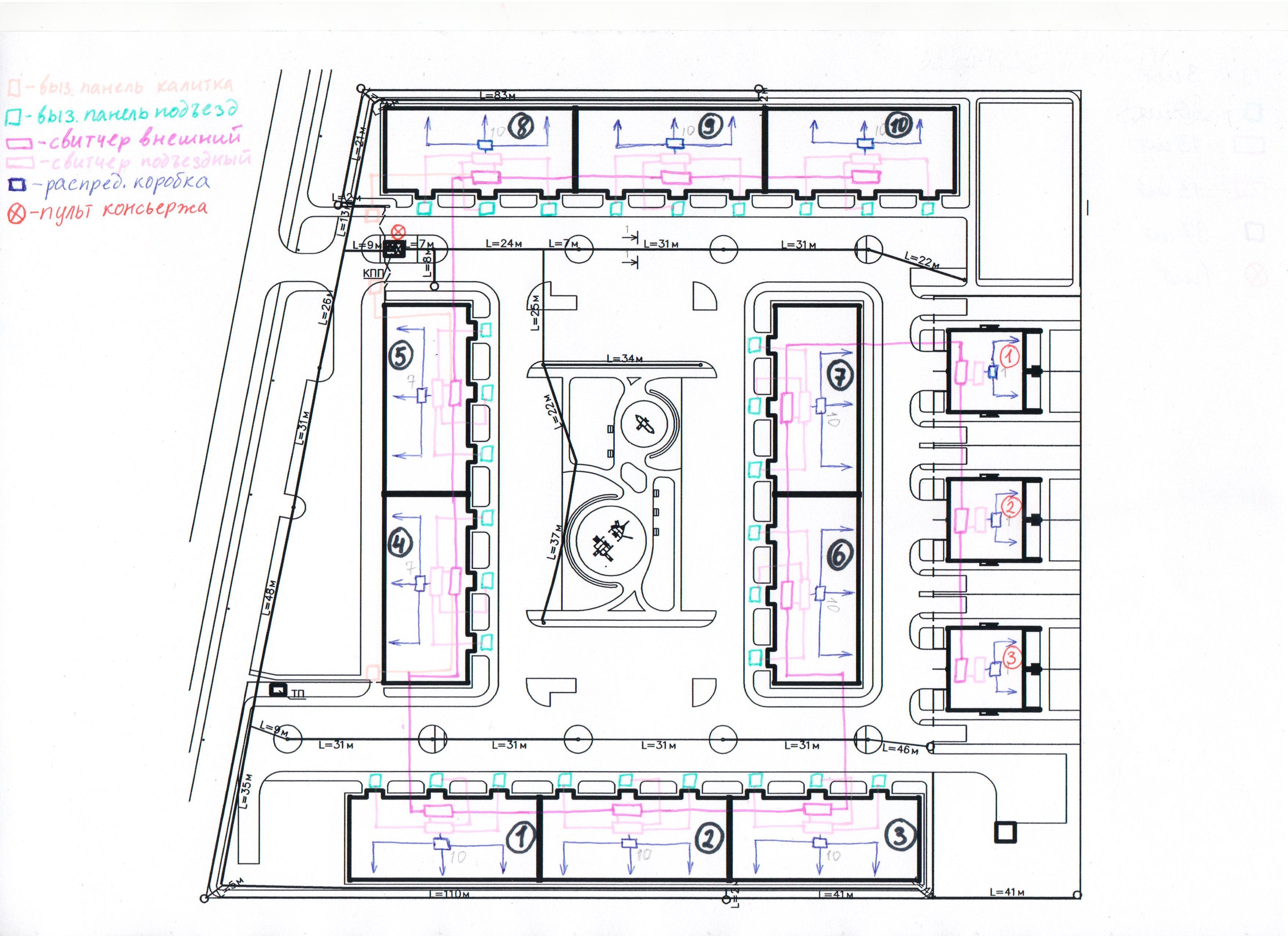
Схема подключения вашего объекта

- 10 домов 3 калитки ворота.jpg (522.07 KiB) Просмотров: 3714
Re: 10 домов 3 калитки ворота

Добавлено:
23 янв 2017, 12:15
TheGoldMaster
По схеме :
Вызовы с калиток и ворот могут поступать как в любой дом (На домофоне надо набрать «НОМЕР_ДОМА_(КОРПУС)»,… потом 2 раза К… и
далее «НОМЕР_КВАРТИРЫ») так и на охрану .
Охрана из данной схемы может только принимать звонки . Для того чтобы с охраны можно было звонить в дома , необходим еще дополнительный ряд внешних свитчеров , которые дадут расширение внешних свитчеров . Данные свитчера соединяются по ML входам и выходы их соединяются .
1. Какие кабели использовать для
а)интерфейсной обвязки внешних свитчеров, Используется витая пара , но если вы используете и видео , то можно обвязать комбинированным кабелем 2х0.5 -75 Ом
б)между выз. панелью и свитчером, , Используется витая пара , но если вы используете и видео , то можно обвязать комбинированным кабелем 2х0.5 -75 Ом
с)между свитчером и трубкой? Витая пара .
2. База ключей ТМ хранится в выз.панели?(Т.е. если я пропишу ключ
только для 1 подъезда, попаду ли я с его помощью во 2 или 3 - что нежелательно).
База ключей хранится в процессоре домофона , если вы закодируете ключ скажем на 1 подъезд 1 вого дома , то он будет подходить только к этой двери , так же его можно про кодировать на калитки , Другими словами , на какую дверь вы его закодируете , ту дверь он и будет открывать . НАСТОЯТЕЛЬНО РЕКОМЕНДУЕМ использовать защищенные ключи стандарта RN-MF – данные ключи не клонируются и обеспечат вам максимальную защиту от нежелательных людей .
3. Куда подключается пульт консьержа? На схеме указан . пульт имеет свой внешний свитчер 11.
Re: 10 домов 3 калитки ворота

Добавлено:
23 янв 2017, 12:22
ЕвгенийТ
Спасибо за ответ.
В общем схема понятна, только не хватает таунхаусов. Выз. панели в них не нужны, но с калиток вызов осуществляться должен. Если я правильно понимаю, добавляются еще 3 внешних свитчера(на каждый из таунхаусов), но нужны ли подъездные? Еще вопрос: процессоры для выз. панелей нужно приобретать и устанавливать отдельно или есть другие решения? По вопросам обсчета данной спецификации и стоимости оборудования к кому обращаться?
Заранее благодарю.
Re: 10 домов 3 калитки ворота

Добавлено:
23 янв 2017, 12:28
TheGoldMaster
1) Если на таунхаусах нет вызывных панелей, то можно со СВИТЧЕРА консьержа протянуть линию к трубкам этих домов. Это первый вариант. Но! Если кто-то будет говорить с Консьержем, то в таунхаусы позвонить будет нельзя. Высветится ЗАНЯТО
2) Если предполагать , что когда-нибудь будут панели на этих домах и чтобы избежать ЗАНЯТО, то можно поставить на КАЖДЫЙ дом по доп. СВИТЧЕРУ. Адресов СВИТЧЕРОВ пока хватает.
3) Подъездные СВИТЧЕРА будут не нужны, если ставить дополнительные СВИТЧЕРА для таунхаусов.
4) У нас есть вариант размещения ПРОЦЕССОРА внутри панели (так называемый МОНОБЛОК). Но! в САМИХ панелях возможно только в СТАНДАРТАХ и ЛЮКСА. В БЮДЖЕТАХ это возможно, если панель установлена в ВЫНОСНОМ КОРОБЕ. Варианты с БЮДЖЕТОМ надо выяснять дополнительно.
5) Когда примите решение, то напишите в ТЕХОТДЕЛ , а мы передадим в ОТДЕЛ ПРОДАЖ, чтобы сделали спецификацию. А мы поясним им «нюансы».
Re: 10 домов 3 калитки ворота

Добавлено:
23 янв 2017, 12:37
ЕвгенийТ
Спасибо!
Еще пару вопросов:
1)для выбора блоков питания и их количества нужны токи потребления выз.панелей, процессоров и свитчеров.
2) При установке процессора в выз панель - стоимость будет проц+панель, а в бюджете - проц+панель+короб?
Re: 10 домов 3 калитки ворота

Добавлено:
23 янв 2017, 12:41
TheGoldMaster
1) Блоки питания лучше взять те, которые мы рекомендуем (лучше, и поставляем). Токи зависят от модели панели. СТАНДАРТ и ЛЮКС имеют более мощную подсветку, поэтому там мы рекомендуем блоки 3-5 ампер 12 вольт
2) Для СВИТЧЕРОВ достаточно 1амперных БП (с запасом). , а количество зависит от длины проводов и их качества и расположения самих СВИТЧЕРОВ. Но проблемы бывают редко и в особых случаях “не аккуратности”.
3) Вы правильно предположили, что стоимость будет зависеть на «набора» оборудования. ПАНЕЛЬ+ПРОЦЕССОР+НАКЛАДНОЙ_БОКС и т.д.
Re: 10 домов 3 калитки ворота

Добавлено:
23 янв 2017, 12:44
ЕвгенийТ
Все понятно, но 200мА и 800мА тоже в пределах 1А и с запасом, но в первом случае я могу 4 прибора повесить на 1 блок питания, а во втором 1. В моем случае у меня 14 свитчеров внешних (с учетом таунхаусов) - сколько нужно БП и каких? То же с выз панелями, где-то одна, а где-то 3 вместе. Было бы лучше, если бы вы сказали точные токи, расчет я сделаю сам.
Re: 10 домов 3 калитки ворота

Добавлено:
23 янв 2017, 12:50
TheGoldMaster
) Токи уточним и напишем. Токи будут при работе в стандартном режиме. Это так, потому что производство меняет (например) детали подсветки. Но рекомендуем блок НЕ МЕНЕЕ 1А на КАЖДЫЙ КОМПЛЕКТ (ПАНЕЛЬ (Бюджет) +ПРОЦЕССОР) и это без учета потребления ЗАМКА !!!! Подчеркиваем, что блоки питания нужны отдельно на КАЖДЫЙ КОМПЛЕКТ. Теоретически, можно рассчитать и повесить на один блок питания и 4 прибора, зная сколько потребляет прибор (особенно на столе) , но так же (теоретически) мы можем Вам описать 100 моментов, когда такая расчётная теория без «серьёзного запаса» приведёт к проблемам при эксплуатации.
2) 200мА – это в пределах 1А, но это без запаса по нашей терминологии.
3) Если СВИТЧЕРА располагаются рядом с ПРОЦЕССОРОМ, то можно питать их и от блока питания процессора. Там самый потребляющий элемент РЕЛЕ. Его потребление около 30-50мА. Повторим, что важно где будут располагаться СВИТЧЕРА. При срабатывании РЕЛЕ СВИТЧЕРА, потребление прибора будет 60-100мА. Одновременно реле НИКОГДА не срабатывают, поэтому данное рассуждение верно
Вы задаёте правильные и конкретные вопросы. И есть практика, которая показала, что домофон, потребляющий 500мА в пиковых режимах работает не надежно, если ему поставить блок питания с током 0,7мА. Поэтому советуем учитывать теорию, но руководствоваться многолетней практикой.
В противном случае, мы будем иметь ситуацию «как повезёт» !